Moderna vila na Makarskoj rivijeri
Smještena u gradu Makarska, podno planine Biokovo i s pogledom na Jadransko more, Kuća 2Z projektirana je kao moderna vila koja može funkcionirati kao obiteljska kuća ili luksuzna vila za najam. Ova moderna vila u Makarskoj spaja suvremenu arhitekturu i mediteranski ambijent.
Arhitektonski koncept
Projekt nazvan 2 Z – dva zida temelji se na dva paralelna perforirana betonska zida između kojih je organiziran prostor kuće. Takav koncept omogućuje jasnu organizaciju interijera i racionalno korištenje parcele na strmom terenu.
Moderna vila s pogledom na more
Volumen kuće je čist i minimalistički, bez suvišnih detalja. Ova moderna vila s pogledom na more projektirana je racionalno kako bi se postigla arhitektonska kvaliteta uz kontrolirane troškove gradnje.
Organizacija prostora
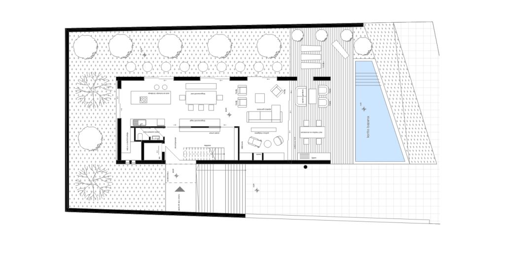
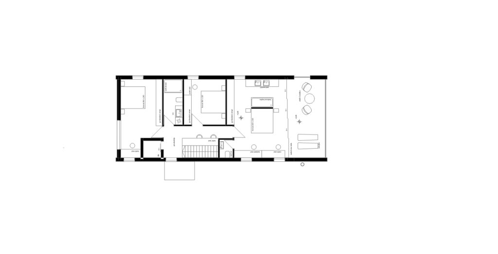
Kuća je organizirana kao katnica: podrum sa servisnim sadržajima, prizemlje otvorenog koncepta s dnevnim boravkom, kuhinjom i blagovaonicom te kat s privatnim spavaćim sobama.
Suvremena vila u Dalmaciji
Tamni tonovi dvaju zidova naglašavaju identitet kuće i stvaraju kontrast s mediteranskim krajolikom. Kuća 2Z pokazuje kako moderna vila u Dalmaciji može biti jednostavna, funkcionalna i atraktivna za stanovanje ili turistički najam.
Pogledajte i naš projekt – Kuća A
NAZIV PROJEKTA
KUĆA 2Z
PROJEKTIRANJE
2025-2026
AUTOR
TOMISLAV GALIĆ
TIPOLOGIJA
OBITELJSKA KUĆA
STATUS
IDEJNI PROJEKT
KLIJENT
PRIVATNI
LOKACIJA
MAKARSKA
OBUHVAT
500m²
ETAŽE
PO+PR+1
BRUTO POVRŠINA
320m²
TLOCRTNA POVRŠINA
120m²
VRIJEDNOST PROJEKTA
520 000 €









