KUĆA 2 Z
MODERNA VILA

luksuzna vila na Makarskoj rivijeri s panoramskim pogledom
moderna vila na Makarskoj rivijeri s pogledom na more

Moderna vila na Makarskoj rivijeri

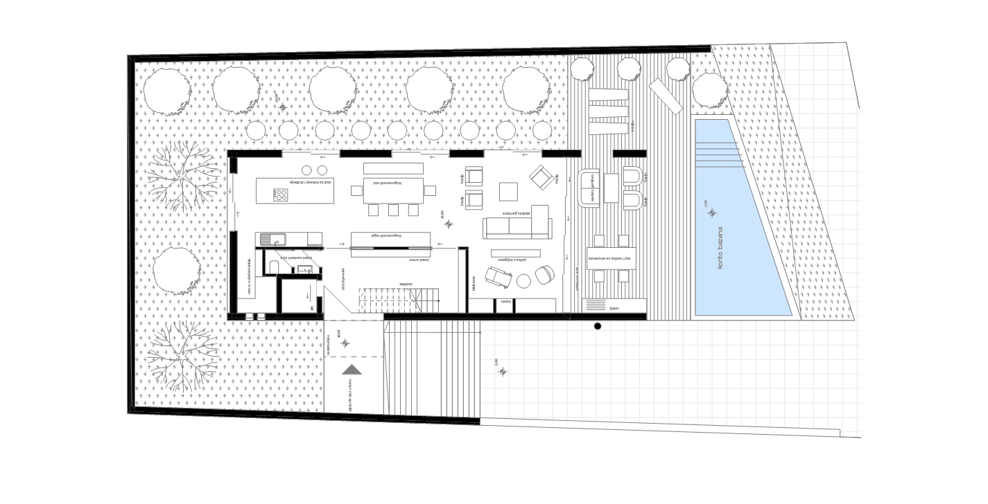
Smještena u gradu Makarska, podno planine Biokovo i s pogledom na Jadransko more, Kuća 2Z projektirana je kao moderna vila koja može funkcionirati kao obiteljska kuća ili luksuzna vila za najam. Ova moderna vila u Makarskoj spaja suvremenu arhitekturu i mediteranski ambijent.

Arhitektonski koncept

Projekt nazvan 2 Z – dva zida temelji se na dva paralelna perforirana betonska zida između kojih je organiziran prostor kuće. Takav koncept omogućuje jasnu organizaciju interijera i racionalno korištenje parcele na strmom terenu.

Moderna vila s pogledom na more

Volumen kuće je čist i minimalistički, bez suvišnih detalja. Ova moderna vila s pogledom na more projektirana je racionalno kako bi se postigla arhitektonska kvaliteta uz kontrolirane troškove gradnje.

Organizacija prostora

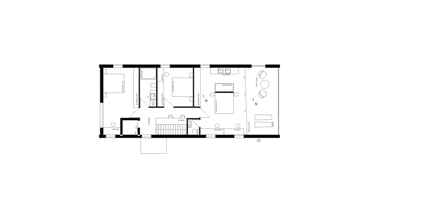
Kuća je organizirana kao katnica: podrum sa servisnim sadržajima, prizemlje otvorenog koncepta s dnevnim boravkom, kuhinjom i blagovaonicom te kat s privatnim spavaćim sobama.

Suvremena vila u Dalmaciji

Tamni tonovi dvaju zidova naglašavaju identitet kuće i stvaraju kontrast s mediteranskim krajolikom. Kuća 2Z pokazuje kako moderna vila u Dalmaciji može biti jednostavna, funkcionalna i atraktivna za stanovanje ili turistički najam. 

Pogledajte i naš projekt – Kuća A

NAZIV PROJEKTA

KUĆA 2Z

PROJEKTIRANJE

2025-2026

AUTOR

TOMISLAV GALIĆ

TIPOLOGIJA

OBITELJSKA KUĆA

STATUS

IDEJNI PROJEKT

KLIJENT

PRIVATNI

LOKACIJA

MAKARSKA

OBUHVAT

500m²

ETAŽE

PO+PR+1

BRUTO POVRŠINA

320m²

TLOCRTNA POVRŠINA

120m²

VRIJEDNOST PROJEKTA

520 000 €

KONTAKT

ADOCULOS

info@adoculos.hr

+385 99 403 2239

PRATI NAS

ADRESA

Ante Starčevića 32

21300 Makarska

Hrvatska