KUĆA A
OBITELJSKA KUĆA

Obiteljska kuća na Makarskoj rivijeri

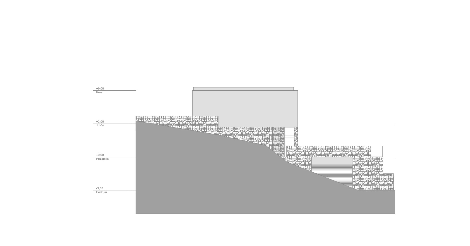
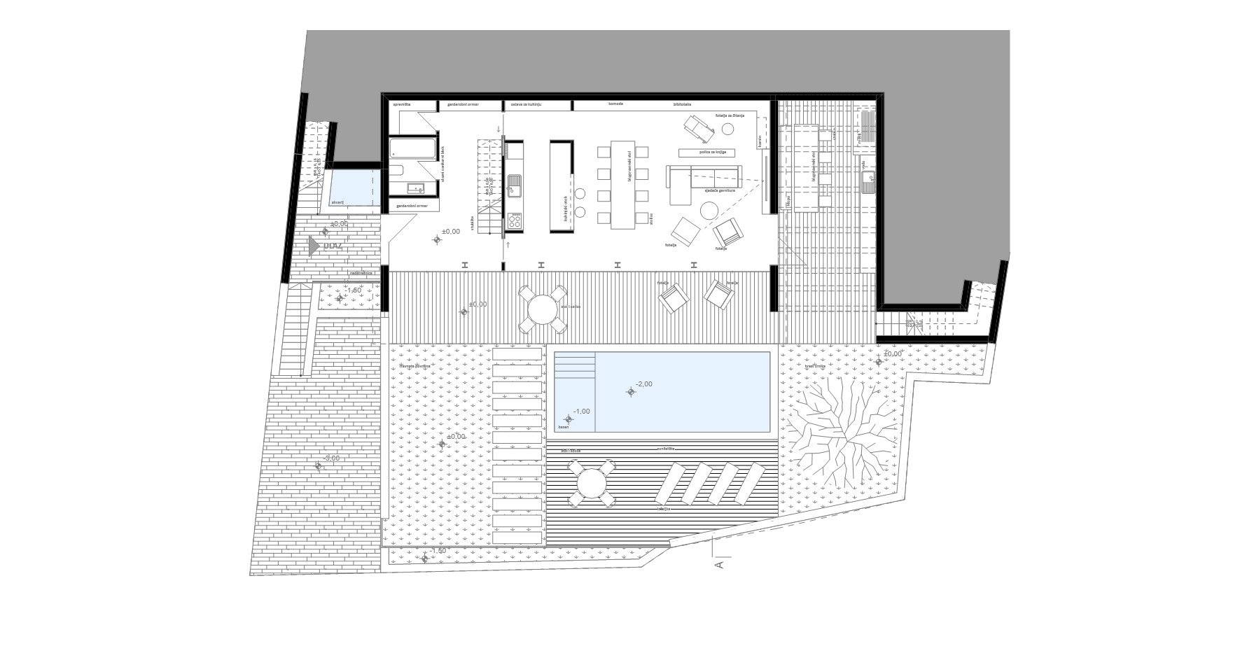
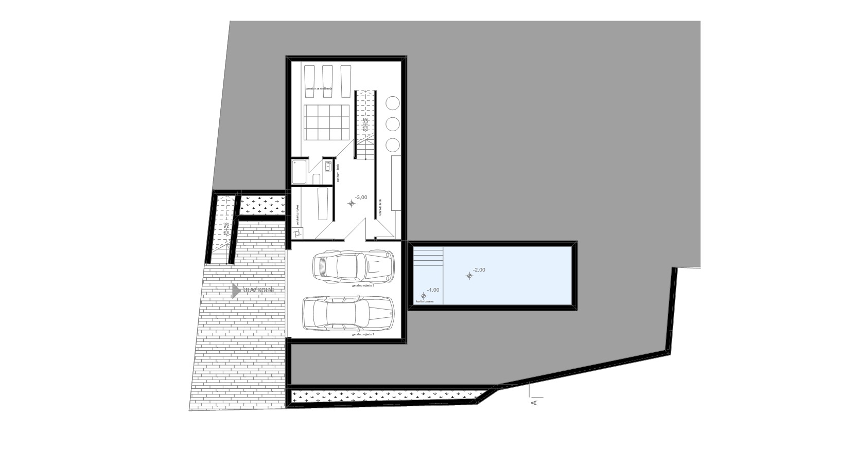
Smještena podno Biokova, na strmom terenu koji se obrušava prema Jadranskom moru, Kuća A projektirana je kao moderna obiteljska kuća u Baškoj Vodi koja istovremeno funkcionira kao ekskluzivna vila za iznajmljivanje. Ova kuća oblikovana je metodom stackinga, kojom se više volumena povezuje u skladnu arhitektonsku cjelinu, stvarajući dinamične i funkcionalne prostore.

Arhitektura – Obiteljska kuća na strmom terenu

Obiteljska kuća urezana je u teren te se sastoji od podruma sa servisnim sadržajima, prizemlja otvorenog dnevnog dijela i kata sa privatnim spavaćim prostorima. Organizacija prostora omogućuje maksimalno korištenje prirodnog nagiba terena i otvara poglede prema moru i okolnom krajoliku.

Arhitektonska interpretacija tradicijskog nasljeđa naglašena je teksturom, bojom i materijalima, stvarajući suvremenu obiteljsku kuću koja se harmonično uklapa u prirodno mediteransko okruženje Baške Vode i Makarske rivijere.

Sjajne primjere arhitekture možete pogledati na  Archdaily

NAZIV PROJEKTA

KUĆA A

PROJEKTIRANJE

2025

AUTOR

TOMISLAV GALIĆ

TIPOLOGIJA

OBITELJSKA KUĆA

STATUS

IDEJNO RJEŠENJE

KLIJENT

PRIVATNI

LOKACIJA

BRELA

OBUHVAT

700 m²

ETAŽE

PO+PR+1

BRUTO POVRŠINA

342 m²

TLOCRTNA POVRŠINA

140 m²

VRIJEDNOST PROJEKTA

581.000 €

KONTAKT

ADOCULOS

info@adoculos.hr

+385 99 403 2239

PRATI NAS

ADRESA

Ante Starčevića 32

21300 Makarska

Hrvatska