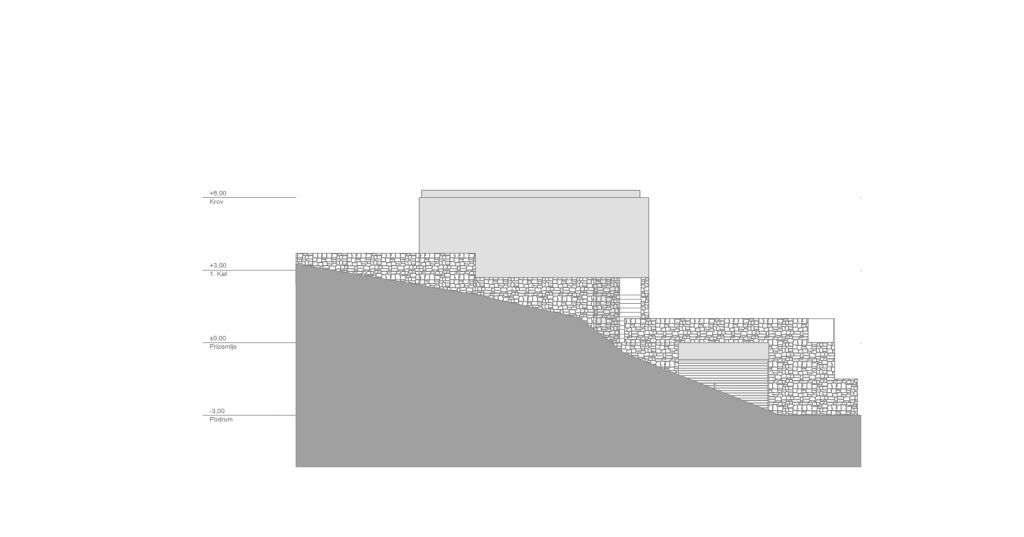
Smještena podno Biokova, na strmom terenu koji se obrušava prema Jadranskom moru, Kuća A projektirana je kao moderna obiteljska kuća u Baškoj Vodi koja istovremeno funkcionira kao ekskluzivna vila za iznajmljivanje. Ova obiteljska kuća oblikovana je metodom stackinga, kojom se više volumena povezuje u skladnu arhitektonsku cjelinu, stvarajući dinamične i funkcionalne prostore.
Arhitektura – Obiteljska kuća na strmom terenu
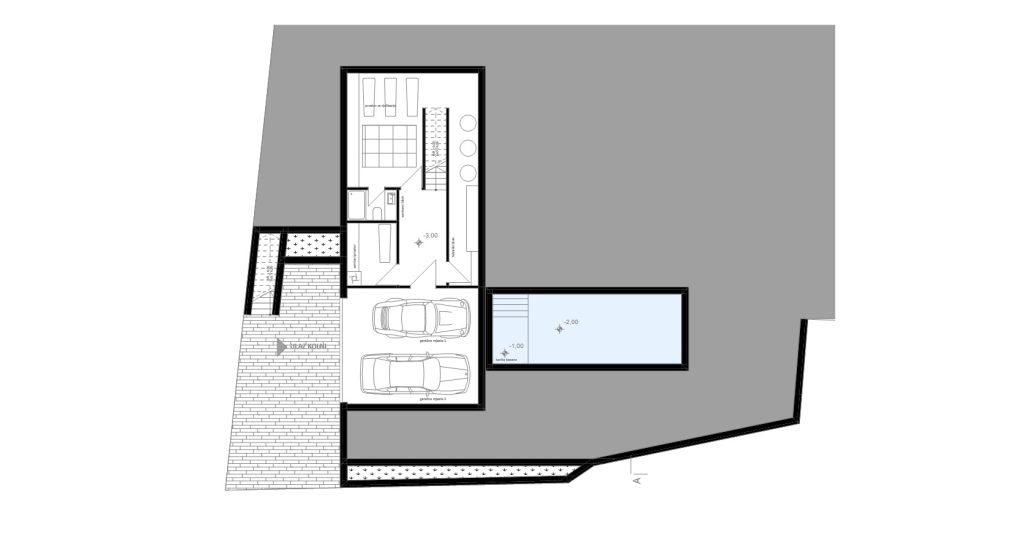
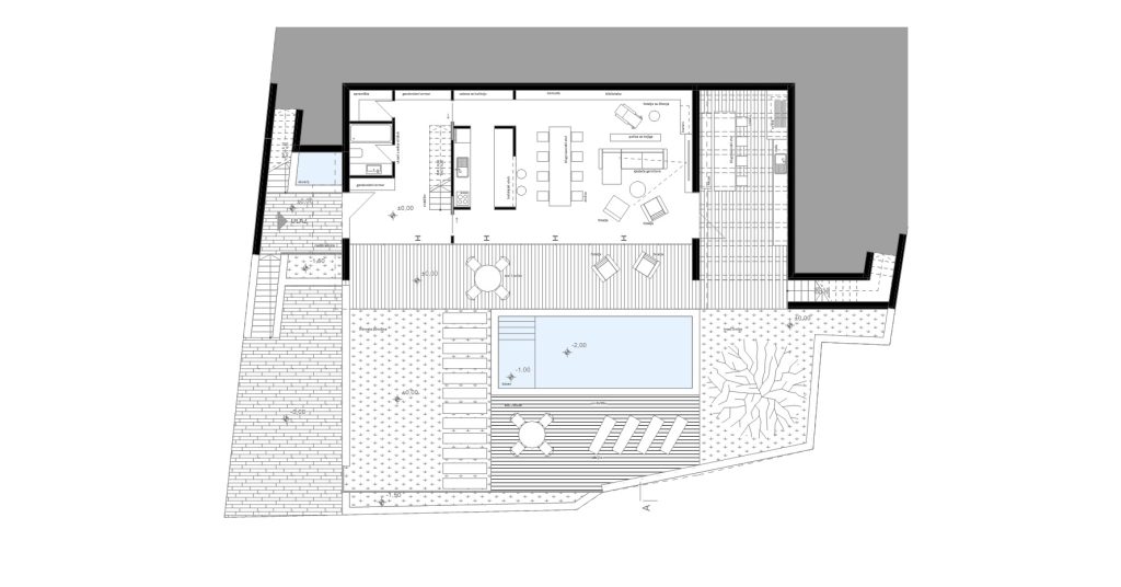
Obiteljska kuća urezana je u teren te se sastoji od podruma sa servisnim sadržajima, prizemlja otvorenog dnevnog dijela i kata sa privatnim spavaćim prostorima. Organizacija prostora omogućuje maksimalno korištenje prirodnog nagiba terena i otvara poglede prema moru i okolnom krajoliku.
Arhitektonska interpretacija tradicijskog nasljeđa naglašena je teksturom, bojom i materijalima, stvarajući suvremenu obiteljsku kuću koja se harmonično uklapa u prirodno mediteransko okruženje Baške Vode i Makarske rivijere.
Sjajne primjere arhitekture možete pogledati na Archdaily
NAZIV PROJEKTA
KUĆA A
PROJEKTIRANJE
2025
AUTOR
TOMISLAV GALIĆ
TIPOLOGIJA
OBITELJSKA KUĆA
STATUS
IDEJNO RJEŠENJE
KLIJENT
PRIVATNI
LOKACIJA
BRELA
OBUHVAT
700 m²
ETAŽE
PO+PR+1
BRUTO POVRŠINA
342 m²
TLOCRTNA POVRŠINA
140 m²
VRIJEDNOST PROJEKTA
581.000 €











